3D Laserscan
Präzision für Architektur,
Innenräume und
Geländemodelle
3D Laserscan im Innviertel und darüber hinaus.
Für die Umsetzung unserer Laserscan-Projekte setzen wir modernste Technologie ein. Mit dem Laserscanner Z+F IMAGER® 5016 lassen sich Objekte jeder Art schnell und millimetergenau erfassen – ideal für unterschiedlichste Projektanforderungen in Bau, Sanierung und Dokumentation.
Was ist ein 3D Laserscan?
Beim 3D-Laserscanning werden Objekte mithilfe modernster Lasertechnologie erfasst und in einer 3D-Punktwolke abgebildet. Die Punktdichte kann je nach Anforderung so eingestellt werden, dass Genauigkeiten im Millimeterbereich möglich sind. Aus diesen Daten entstehen Gebäudemodelle, Fassadenpläne, Grundrisse und Schnitte. Darüber hinaus sind auch weiterführende Auswertungen, wie etwa Abstands- oder Deformationsanalysen, möglich.
DER DIGITALE ZWILLING
Ein 3D-Laserscan dient der Erstellung eines digitalen Abbilds – dem sogenannten Objektzwilling. Auf Basis der Punktwolke wird die Geometrie digital dargestellt.
In der weiteren Bearbeitung können zusätzliche Informationen wie Wandaufbau, Materialien, Dämmwerte, aber auch Fenster und Türen in das Modell integriert werden – die Grundlage für BIM.
Vorteile von 3D-Laserscanning
- Höchste Genauigkeit: Präzise Erfassung von Bestandsobjekten nach definierten Anforderungen
- Effizienz: Schnelle und detailgetreue Datenerfassung
- Vielseitigkeit: Z.B. auch für unterirdische Anlagen geeignet
- Digitale Weiterverarbeitung: Punktwolken können für vielseitige Anwendungen verwendet werden (Bsp.: Modellierungen, Deformationsanalysen, BIM,…)
Scan to BIM – Zukunftssicher planen
Ein 3D-Laserscan dient der Erstellung eines digitalen Abbilds – dem sogenannten Objektzwilling. Auf Basis der Punktwolke wird die Geometrie digital dargestellt.
In der weiteren Bearbeitung können zusätzliche Informationen wie Wandaufbau, Materialien, Dämmwerte, aber auch Fenster und Türen in das Modell integriert werden – die Grundlage für BIM.
Datenformate & Auswertung
Die Ergebnisse können in allen gängigen Formaten bereitgestellt werden. Punktwolken werden in der Regel im weit verbreiteten E57-Format ausgegeben. Das Zielformat eines Gebäudemodells wird vor der Modellierung gemeinsam mit dem Auftraggeber festgelegt und kann unter anderem in den nativen Formaten von AutoCAD Revit oder Graphisoft ArchiCAD geliefert werden.
Abgeleitete Grundrisse und Schnitte können als 2D-AutoCAD-DWG-Dateien sowie als PDF-Dokumente zur Verfügung gestellt werden.
Zusätzlich kann die Punktwolke in einem lizenzfreien Standalone-Viewer zur Betrachtung angezeigt werden. Ebenso lassen sich Messungen durchführen sowie einzelne Punkte und Linien abgreifen und exportieren.
Einsatzmöglichkeiten im Detail
- Architektur & Innenaufnahmen: Dokumentation für Umbauten, Sanierungen, Denkmalschutz
- Fassadenaufnahme: Detailgetreue Erfassung zur Planung und Sanierung
Unter Tage & Schachtbauwerke: Präzise Aufnahme von Schächten, Gewölben und unterirdischen Anlagen.
- Architektur & Innenaufnahmen: Dokumentation für Umbauten, Sanierungen, Denkmalschutz
Fassadenaufnahme: Detailgetreue Erfassung zur Planung und Sanierung
Unter Tage & Schachtbauwerke: Präzise Aufnahme von Schächten, Gewölben und unterirdischen Anlagen.
Fassadenphotogrammetrie: Detailgetreue Erfassung von Fassaden zur Planerstellung und Sanierung.
Spezialstrukturen: Erfassung komplexer Bauwerke bis ins Detail.
Galerie
Gebäudebestand
Industrieanlage Kraftwerk
Industrieanlage Innenaufnahme Elektroofen
Geländemodell, Kubaturermittlung
Schachtbauwerk / im Kanal mit Grundriss – Längsschnitt – Querprofil
Kellergewölbe
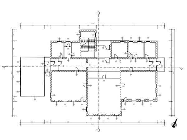
Fassadenplan
Noch Fragen?
Für welche Projekte eignet sich ein 3D Laserscan besonders?
Durch 3D-Laserscanning lassen sich nahezu alle Bestandsobjekte präzise digital erfassen. Die daraus erzeugten digitalen Abbilder finden Anwendung in der Architektur, im Ingenieurbau sowie bei der Planung und Dokumentation von Industrieanlagen.
Wie genau sind die Ergebnisse?
Die Genauigkeit wird im Vorfeld gemeinsam mit dem Auftraggeber definiert. Sie hängt von Faktoren wie Objektentfernung, Oberfläche des Objektes oder Einfallswinkel des Messsignals ab. Daher kann die konkrete Genauigkeit nur projektspezifisch angegeben werden. Unter geeigneten Bedingungen sind sehr präzise Ergebnisse im Millimeterbereich erreichbar.
Was versteht man unter Scan to BIM im Detail?
Scan to BIM bezeichnet die Umwandlung eines realen Bauwerks in ein intelligentes, digitales Gebäudemodell. Dabei wird das Objekt zunächst mittels 3D-Laserscan erfasst und aus der generierten Punktwolke ein digitales Modell erzeugt. Ein BIM-Modell besteht aber nicht nur aus der Geometrie des Gebäudes, sondern enthält auch zusätzliche Informationen wie Materialien, Schichtaufbauten oder technische Eigenschaften. Das Ergebnis ist eine verlässliche Planungsgrundlage für Architekten, Ingenieure und Bauherren, die eine korrekte Darstellung von Umbauten, Sanierungen und Erweiterungen ermöglicht.
Was ist ein digitaler Objektzwilling?
Ein digitaler Objektzwilling ist das digitale Abbild eines bestehenden Objekts. Auf dieser Grundlage lassen sich fundierte Aussagen zur Objektqualität ableiten. Auch im Rahmen von Förderungen können die geforderten Anforderungen zuverlässig erfüllt werden. Dazu zählen unter anderem die Registrierung der Punktwolke im Landeskoordinatensystem, Auswertungen gemäß ÖNORM sowie die Ableitung von Grundrissen und Schnitten mit normgerechter Bemaßung.
Wie lange dauert ein Projekt?
Die Dauer eines 3D-Laserscanning-Projekts hängt grundsätzlich von der Größe und Komplexität des Objekts ab. Die Scan-Arbeiten sind jedoch meist innerhalb weniger Stunden, bei größeren Objekten innerhalb von ein bis zwei Tagen abgeschlossen. Die Datenaufbereitung und Modellierung benötigen – je nach Umfang und Detailgrad – mehrere Wochen.
Die Gesamtdauer des Projekts lässt sich in einem persönlichen Gespräch aber zuverlässig abschätzen.
Welche Kosten entstehen?
Die Kosten richten sich nach Projektgröße, Objektumfang und gewünschter Auswertung. Gerne erstellen wir ein individuelles Angebot, exakt zugeschnitten auf Ihre Anforderungen.
Nehmen Sie einfach Kontakt zu uns auf.
Ich möchte mein Haus umbauen, hilft mir dabei ein 3D-Modell?
Ja. Ein 3D-Modell liefert eine präzise Grundlage für Umbauten und Sanierungen. Durch einen 3D-Laserscan wird der Ist-Zustand Ihres Hauses millimetergenau erfasst und digital abgebildet. So stehen verlässliche Daten zu Raumgeometrien, Wandverläufen und Öffnungen zur Verfügung – auch bei Abweichungen vom Planbestand.
Architekten und Planer können darauf aufbauend sicherer planen, Risiken minimieren und den Umbau effizient vorbereiten.
Wir sind regional und überregional im Einsatz
Wir bieten 3D-Laserscanning sowohl regional im Innviertel als auch überregional in ganz Österreich sowie im angrenzenden Bayern an. Durch mobile Technik können Projekte flexibel und standortunabhängig umgesetzt werden.
